Modulaarinen majoitus – nopea, kestävä ja muunneltava ratkaisu
Aulis Lundell Oy kehittää modulaarista majoituskonseptia SSAB Zero™ -teräksestä. Teräspohjaiset majoitusmoduulit tarjoavat kestävän ja tehokkaan tavan toteuttaa hotelli-, resort- tai työmaamajoitusta – missä tahansa Suomessa tai maailmalla.
Rakentaminen perustuu materiaalivalintoihin, ja runkomateriaaliksi on valikoitunut teräs, joka on tuotettu kierrätysteräksestä fossiilivapaalla sähköllä ja biokaasulla. Valmiit moduulit valmistetaan kuivissa tehdasolosuhteissa ja kuljetetaan valmiina käyttöpaikalle. Asennus tapahtuu päivissä – ei kuukausissa.
Modulaarinen majoitus – kestävä ja ympäristöystävällinen valinta
- Perustuu SSAB Zero™ -teräkseen, joka on tuotettu kierrätysteräksestä fossiilivapaalla sähköllä ja biokaasulla.
- SSAB Zero™ -teräksen tuotannossa syntyvät fossiiliset hiilidioksidipäästöt ovat alle 0,05 kg CO₂e/kg terästä GHG-protokollan Scope 1- ja Scope 2 -luokissa.
- Aulis Lundell Oy:n tuotteilla on EPD-ympäristöselosteet ja elinkaarilaskelmat RTS-sertifioinnin mukaisesti.
Tilaa säästävä ja viimeistelty sisätila
Liune-liukuovet täydentävät modulaaristen majoitusmoduulien tilasuunnittelua. Kun ovi liukuu seinän sisään, jokainen neliö saadaan tehokkaasti käyttöön – erityisen tärkeää kompakteissa huoneissa ja kylpytiloissa. Kotimaiset ja äänieristetyt Liune-ratkaisut ovat saatavana myös kosteantilan ja automaattikäyttöisinä versioina, jolloin esteettömyys ja muunneltavuus toteutuvat saumattomasti osana tilasuunnittelua.
Monipuoliset käyttökohteet
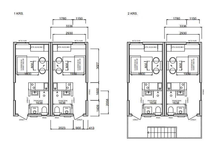
- Hotellimoduulit – yksittäiset huoneet tai yhdistetyt kokonaisuudet, joissa jokaisella yksiköllä on oma sisäänkäynti ja kylpytila.
- Resort-konseptit – yhdisteltävät majoitusmoduulit, yhteistilat ja saunarakennukset yhtenä arkkitehtonisena kokonaisuutena.
- Vapaa-ajan moduulit – luonnon keskellä sijaitsevat premium-mökit, joissa yhdistyy moderni mukavuus ja ekologisuus.
- Työmaa- ja opiskelijamajoitus – nopeasti siirrettävät, edulliset ja energiatehokkaat yksiköt, jotka kestävät käyttöä vuodesta toiseen.
Tekninen rakenne ja suorituskyky
- Rakennusmateriaali: teräsrankarakenne
- Ulkoverhous: maalattu teräs, puu tai komposiitti
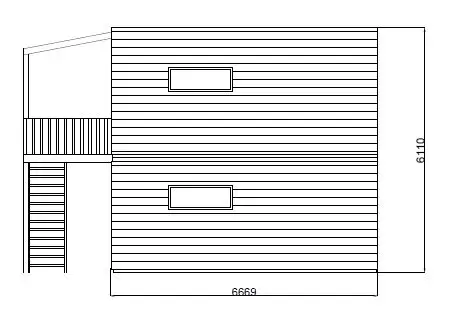
- Kattotyyppi: loiva pulpettikatto ilman räystästä
- Lämmöneristys: energiatehokkaat ratkaisut pohjoisen olosuhteisiin
- Ilmanvaihto: koneellinen LTO
- Paloluokka: P2 / EI30 – EI60
- Asennus: 1–3 päivää per yksikkö
Elinkaariviisas ratkaisu
Tutkimusten mukaan modulaarinen rakentaminen voi vähentää materiaalihukkaa jopa 90% ja pienentää merkittävästi rakennusvaiheen hiilijalanjälkeä. Modulaarinen majoitusmoduuli voidaan siirtää, purkaa ja käyttää uudelleen ilman materiaalin menetystä, mikä tekee siitä aidosti kiertotalouden periaatteita tukevan ratkaisun. Teräsrakenne mahdollistaa muuntojoustavat pohjaratkaisut, pitkän käyttöiän ja erittäin matalan huoltotarpeen – yhdistelmä, joka tekee modulaarisesta majoituksesta kestävän ja elinkaariviisaan valinnan tulevaisuuden rakentamiseen.






